We’d love to hear about your next project.

+44 (0) 151 231 1209
mail@dk-architects.com

Twitter / Instagram

DK-Architects
26 Old Haymarket
Liverpool, L1 6ER

Salvation Army, Southport
Project Name: Salvation Army
Type: Community
Client: The Salvation Army
Location: Southport
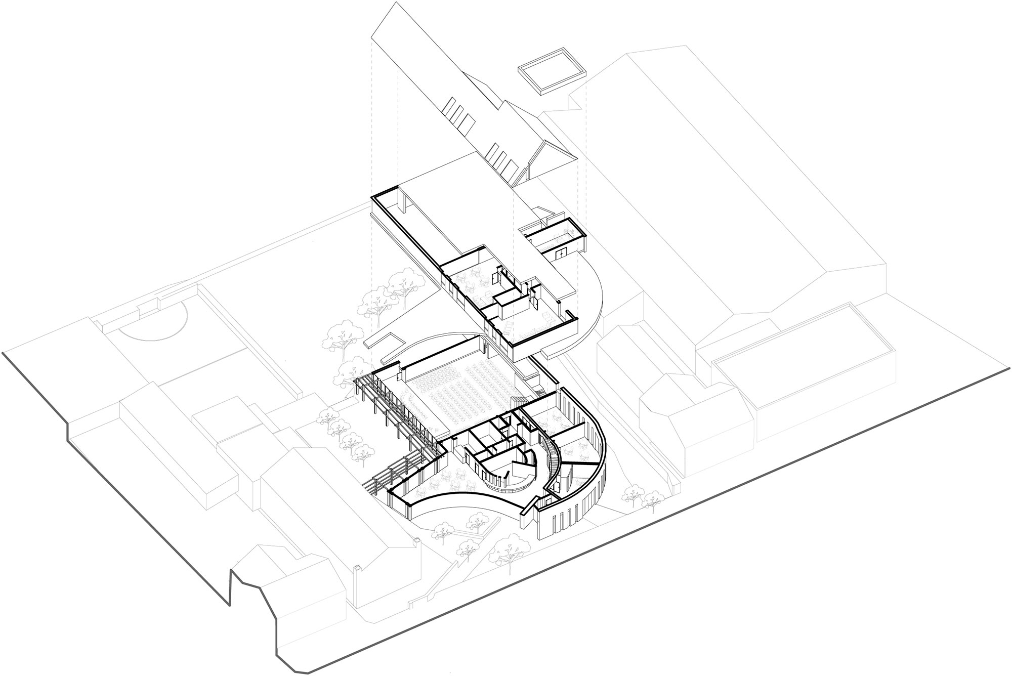
A 1070sqm new flagship worship hall and community centre for the Salvation Army. Built on a brownfield site adjacent to their previous worship hall, the scheme unifies the elements of the Corps' activities in a holistic complex. This is the first purpose built church in Southport for over a century.

The building is intentionally fluid. Arranged around a curved spine wall are four general purpose spaces, plus a reception area, café, worship hall, prayer room, offices for the Corps Officers and staff, and ancillary accommodation.

The entrance to the building is a new public square on Shakespeare Street, providing much-needed softening, civic character and unity to this typical, mixed-use, edge-of-town thoroughfare.

Materiality has similarly taken its cue from the original hall so that the buildings read together onto the public realm of Shakespeare Street. The new building is, however, clearly defined by its detailing, which provides a contemporary twist.